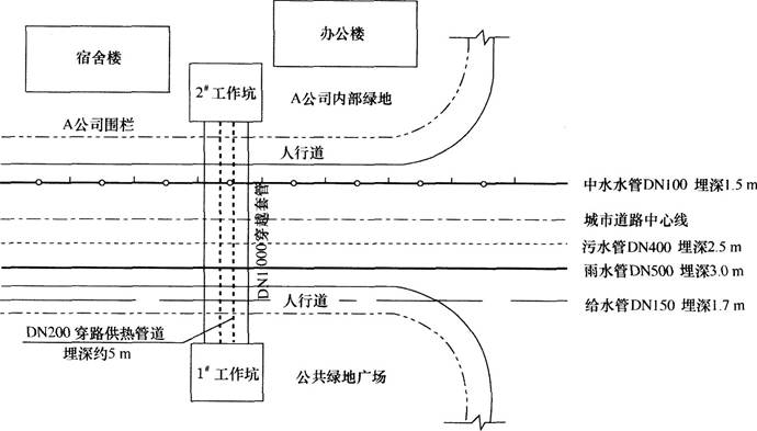
某市政供热管道工程,供回水温度为95℃/70℃,主体采用直埋敷设。管线经过公共绿地和A公司场院,A公司院内建筑密集、空间狭窄。供热管线局部需穿越道路,道路下面敷设有多种管道。项目部拟在道路两侧各设置1个工作坑,采用人工挖土顶管施工,先顶入DN1000mm混凝土管作为过路穿越套管,并在套管内并排敷设2根DN200mm保温供热管道(保温后的管道外径为320mm)。穿越道路工程所在区域的环境条件及地下管线平面布置如下图所示,地下水位高于套管管底0.2m。
问题:1.按照输送热媒和温度划分,本管道属于什么类型的供热管道?2.顶管穿越时需要保护哪些建(构)筑物?3.顶管穿越地下管线时应与什么单位联系?4.根据现场条件,顶管应从哪一个工作坑始发?说明理由。5.顶管施工时是否需要降水?写出顶管作业对地下水位的要求。6.本工程的工作坑土建施工时,应设置哪些主要安全设施?
分享到:
