背景:
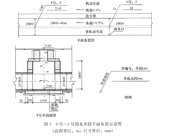
某公司承建一段新建城镇道路工程,其雨水管道位于非机动车道下,设计采用D800mm钢筋混凝土管,相邻井段间距40m,8号~9号雨水井段平面布置如图1所示,8号、9号井类型一致。
施工前,项目部对部分相关技术人员的职责、管道施工工艺流程、管道施工进度计划、分部分项工程验收等内容规定如下:
(1)由A(技术人员)具体负责:确定管道中线、检查井位置与沟槽开挖边线。
(2)由质检员具体负责:沟槽回填土压实度试验;管道与检查井施工完成后,进行管道B试验(功能性试验)。
(3)管道施工工艺流程如下:沟槽开挖与支护→C→下管、排管、接口→检查并砌筑一管道功能性试验→分层回填土与夯实。
(4)管道验收合格后转入道路路基分部工程施工,该分部工程包括挖填土、整平、压实等工序,其质量检验的主控项目有压实度和D。
(5)管道施工划分为三个施工段.时标网络计划如图2所示(两条虚工作线需补充)。

【问题】
1.根据背景资料写出最适合题意的A、B、C、D的内容。
2.列式汁算图l中F、G、H、J的数值。
3.补全图2中缺少的虚工作(用时标网络图提供的节点代号及箭线作答或用文字叙述,在背景资料中作答无效)。补全后的网络图中有J—L条关键线路?工期为多少?
分享到:
